Quick Enquiry

Residential Plots Siyom Tvasta
Logo
Upcoming Projects

Ocus Technopolis – High-End Commercial Office Space in Sector 54, Gurugram

Ocus Technopolis – High-End Commercial Office Space in Sector 54, Gurugram

Overview of Ocus Technopolis – Sector 54, Gurugram

Ocus Technopolis is a premium commercial office space project strategically located in Sector 54, Gurugram. This under-construction development offers world-class office spaces designed for businesses seeking a high-end work environment near DLF Golf Course Road.

The project is planned with modern infrastructure, smart office features, and sustainable design principles. It aims to provide corporate tenants with top-tier amenities, excellent connectivity, and an inspiring professional atmosphere.

About Ocus Technopolis Sector 54, Gurugram

Ocus Technopolis is designed to cater to IT/ITES companies, startups, and corporate offices that demand modern infrastructure combined with luxury and convenience. The project incorporates energy-efficient systems and flexible office layouts to suit various business needs.

Located in Sector 54, the project benefits from close proximity to major business hubs, DLF Golf Course Road, and excellent transport links, making it an ideal address for professionals and enterprises.

Key Highlights of Ocus Technopolis, Sector 54, Gurugram

Modern Amenities at Ocus Technopolis, Gurugram

High-Speed Internet Connectivity
Ample Parking Space
24x7 CCTV Surveillance
Multiple High-Speed Elevators
Uninterrupted Power Supply
Advanced Fire Safety Systems

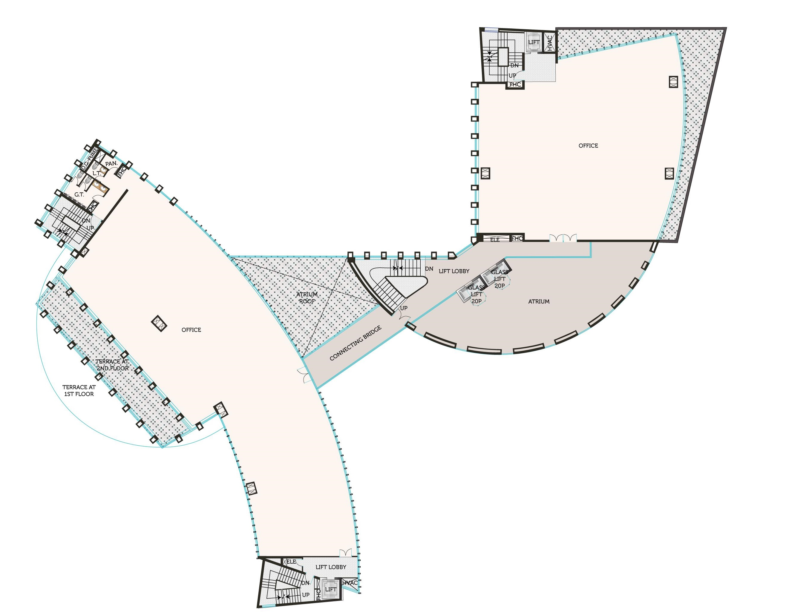
Site Plan – Ocus Technopolis, Sector 54

Ocus Technopolis Sector 54 Site Plan

Detailed site plan showing commercial office blocks, parking, and green spaces.

Configuration & Pricing – Ocus Technopolis

Office Type Configuration Price Range
Commercial Office Spaces Flexible layouts with modern amenities Contact developer for pricing

Location Benefits of Ocus Technopolis, Gurugram

About the Developer – Ocus Group

Ocus Group is a reputed real estate developer known for delivering high-quality commercial and residential projects across Gurgaon and NCR. With a commitment to innovation, quality, and customer satisfaction, the group focuses on building infrastructure that enhances urban living and workspaces.

Their developments are marked by meticulous planning, modern amenities, and eco-conscious construction techniques. Ocus Technopolis is a testament to their forward-thinking approach in the commercial real estate sector.